• HOME
  • PROJECTS
  • FIRST STREET GREEN
  • DRAWINGS
  • ABOUT
  • CONTACT
TODO DA
  • HOME
  • PROJECTS
  • FIRST STREET GREEN
  • DRAWINGS
  • ABOUT
  • CONTACT

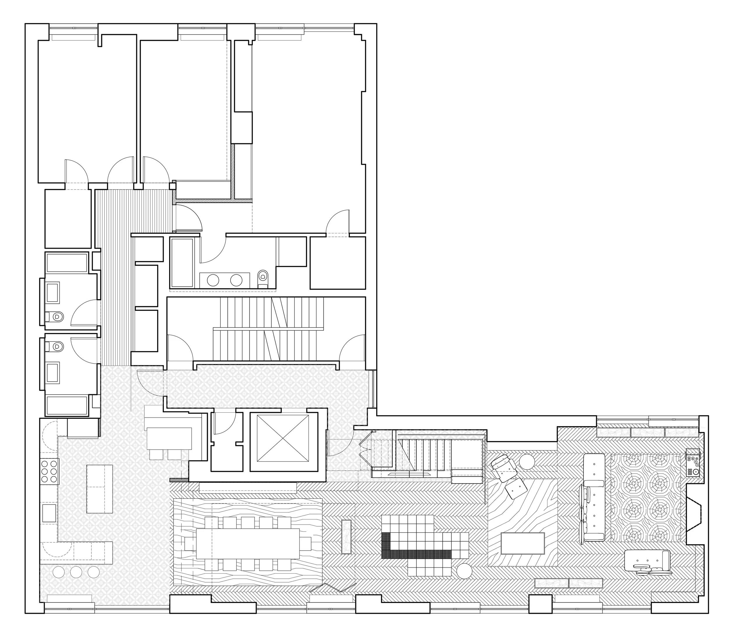
CHELSEA LOFT 02

IN SCHEMATIC DESIGN PHASE

Chelsea Loft Reinvisioining.

FOR WEB2.jpg
elevation-01.jpg
elevation 03 SHADOWS C.jpg
SD3 VIEW 02 R6.jpg
couches.jpg

Powered by Squarespace.